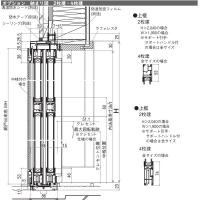
YKKAP店舗 エピソード2 NEO-B 土間引戸 2枚建:[幅1690mm×高2230mm]

▼商品規格

・主材料
[外側]アルミ押出し形材
[内側]樹脂押出し形材 

・内容
ガラス入完成品引戸本体×2枚<br>
未組み立て枠×1セット
ガラス厚(透明3mm+透明3mmガラス、不透明4mm+透明3mmガラス)

▼商品について
・お届けの梱包形態は商品のサイズにより異なります。

・お客様のパソコン環境により、画面上の色と商品の色は異なる場合が
ございます。

・商品はご注文を受けてからメーカーで生産いたしますので商品出荷までに
約1週間〜10日程かかりますのでご了承ください。

エピソード エピソードネオ サッシ アルミ樹脂複合 住宅用 ウィンドウ