庇 後付け アルミ 庇 後付け庇 DIY 三協立山アルミ アクセントひさし (L2FAH-119A) W1237XD100
12,500
販売サイトへ移動
【特長】
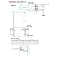
■シンプル&シャープなデザイン
アクセント窓や装飾窓のW寸法に合わせた規格サイズをご用意していますので、住まいの外観イメージに合わせてご使用いただけます。
■水切り溝
ひさし先端部に水切り溝を設けることで、デザイン性を損なわず雨水を流すことができます。
■すだれフック(オプション)
水切り溝に取り付けできるすだれ用のフックをご用意しています。
販売サイトへ移動