ひさしHK型 庇 日よけ 三協立山アルミ (JHSEL-1290) W2830XD350 壁付部材なし

【基本性能】
■耐風圧性(吹き上げ荷重)/1600Pa
■積雪荷重/1500N/m2(積雪50cmに相当)

【特長】
■外壁の上から取り付けできる後付けひさし リフォーム用としても適しています。
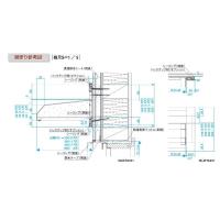
ひさしHK型(壁付用)は、既存サッシに専用壁付部材を用いて外壁の上から簡単に取り付けできる後付けタイプのひさしです。シーリングスペースを設けた壁付部材で、雨じまいにも配慮。新築のように美しい仕上りが短時間の工事でできます。
先付けにも対応しております。
■ゆとり出幅600mmタイプもご用意
引違い窓タイプ・勝手口ドアタイプともに、出幅600mmタイプの庇もご用意しています。
■ひさし内部は硬質発泡ウレタン充填
屋根は、二重塗装二重焼付のカラーエンボス鋼板で、内部に硬質発泡ウレタンを充填。軽さと丈夫さを備えています。
※壁付け部材は付属しておりません